1001 Bay Street 1109Toronto, ON M5S 3A6




Mortgage Calculator
Monthly Payment (Est.)
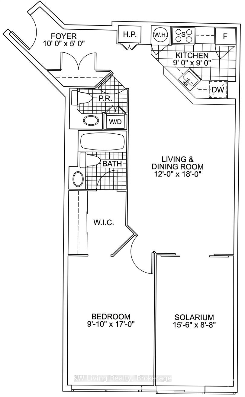
$2,733Experience urban luxury at 1001 Bay! This spacious and meticulously maintained 858 sq. ft.1+Solarium suite is situated in the heart of Downtown Toronto's "Power Centre." Flooded with natural light from its southeast exposure, the versatile solarium features a large window and can easily serve as a functional second bedroom or a quiet home office. The interior boasts an updated chef's kitchen with granite counters, pot lighting, and a breakfast bar, perfectly complemented by gleaming hardwood floors throughout. Retreat to the large primary bedroom featuring a double closet and a full ensuite bath equipped with a deep soaker tub and undermount sink. Residents enjoy world-class amenities, including a 24/7 concierge, indoor pool, basketball &squash courts, fitness centre, and a stunning rooftop terrace. With 6 elevators-the highest configuration in any downtown condo-wait times are a thing of the past. Boasting a perfect Walk Score, you are steps to Wellesley Subway Station, U of T, Toronto Metropolitan University, the Financial District, and the lush greenery of Queen's Park
| yesterday | Listing updated with changes from the MLS® | |
| 2 weeks ago | Listing first seen on site |
Listing information is provided by Participants of the Toronto Real Estate Board. IDX information is provided exclusively for personal, non-commercial use, and may not be used for any purpose other than to identify prospective properties consumers may be interested in purchasing. Information is deemed reliable but not guaranteed. Copyright 2026, Toronto Real Estate Board
Last checked 2026-04-08 03:29 AM UTC